中古一戸建て
新宿区西早稲田1丁目中古戸建
| 価格 | 1億4,480万円 |
|---|---|
| 間取り・ 建物面積 |
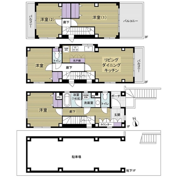
4LDK / 140.37m²(約42.46坪) |
| 築年月 | 築 1999年10月 |
| 交通 | 東京メトロ東西線「早稲田」駅 徒歩3分 東京地下鉄副都心線「西早稲田」駅 徒歩14分 JR山手線「高田馬場」駅 徒歩23分 |
| 所在地 | 新宿区西早稲田1丁目 |
この物件情報を共有する
物件概要
新宿区西早稲田1丁目
1億4,480万円(税込)
東京メトロ東西線「早稲田」駅 徒歩3分
東京地下鉄副都心線「西早稲田」駅 徒歩14分
JR山手線「高田馬場」駅 徒歩23分
SRC(鉄骨鉄筋コンクリート)
4LDK
68.59m²(約20.74坪)
140.37m²(約42.46坪)
1999年10月(平成11年10月)築
地上4階
空家
不要
市街
287m²登記
宅地
一方 南東側幅4m (私道)
接道接面4.6m 接道位置指定無
所有権
第一種住居地域
60%
400%
相談
仲介
有:2台有り





2026年04月15日
2026年04月29日
※地図の更新タイミングの関係で、物件情報が実際のものとは異なる場合や最新情報に更新されていない場合がございます。
※表示される物件の位置が実際のものとは数百メートル程度ずれる場合がございます。
店舗情報
店舗HPはこちら
この物件とよく比較される物件
住まいのすべてをここで。
私たちは住まいに関するご相談に「ワンストップ」でお応えいたします。
住宅供給、建物管理、不動産仲介など、多岐にわたる不動産事業の実績と経験。
住まいと共に歩んできたナイスが皆様の暮らしを幅広くサポートいたします。

※取引態様として<仲介>と記載されている物件は、上記価格の他に当社規定の仲介手数料と別途消費税が必要となります。
※販売価格は物件価格の総額を表示しています。物件価格の消費税及び地方消費税の対象となる場合は消費税込みの価格を表示しています。価格の千円単位を切り上げまたは切り下げを行い表示している場合があります。購入に必要な諸費用などは含まれていません。詳しくは担当者までご確認ください。※外観パースイメージ(絵図)は図面をもとに描いたものです。あらかじめご了承ください。
※室内写真に使用されているパース(予想図)は、内装工事図面をもとに描き起こしたイメージイラストです。
※室内にCGイメージを使用している場合、実際の室内写真をベースにCGイメージを合成しています。室内には汚れ・傷などがある場合があります。
※図面と現況が異なる場合、現況及び担当者情報を優先いたします。※陽当たり・眺望・風通・駐車場の空状況等については更新日現在の情報です。将来にわたって保証するものではありません。※特別の説明がない場合、家具・調度品は販売価格に含まれません。
※間取図に家具の配置が掲載されている場合は、その配置は参考例です。家具のサイズによっては配置できない場合があります。
※ホームステージング®実施物件は、家具や小物でインテリアコーディネートを加えています。家具や小物などは物件価格に含まれません。
※ホームステージング®は一般社団法人日本ホームステージング協会の登録商標です。
※略号凡例・・・L=リビング、D=ダイニング、K=キッチン、MB=メーターボックス、PS=パイプスペース、S=サービスルーム(納戸等)、WIC=ウォークインクロゼット、SIC=シューズインクロゼット、TR=トランクルーム
※上記物件は、掲載中に売却済みまたは売却が中止となる場合があります。
ナイス株式会社 住宅事業本部
神奈川県横浜市鶴見区鶴見中央4-33-1 国土交通大臣免許(15)第1125号 (一社)不動産流通経営協会会員 (一社)不動産協会会員 (公社)首都圏不動産公正取引協議会加盟
新宿区の他のマンションを探す
- 愛住町
- 赤城 下町
- 赤城 元町
- 揚場町
- 荒木町
- 市谷加賀町
- 市谷甲良町
- 市谷砂土原町
- 市谷左内町
- 市谷鷹匠町
- 市谷田町
- 市谷台町
- 市谷長延寺町
- 市谷仲之町
- 市谷八幡町
- 市谷船河原町
- 市谷本村町
- 市谷薬王寺町
- 市谷柳町
- 市谷山伏町
- 岩戸町
- 榎町
- 大久保
- 改代町
- 神楽河岸
- 神楽坂
- 霞岳町
- 片町
- 歌舞伎町
- 上落合
- 喜久井町
- 北新宿
- 北町
- 北山伏町
- 細工町
- 坂町
- 左門町
- 三栄町
- 信濃町
- 下落合
- 下宮比町
- 白銀町
- 新小川町
- 新宿
- 水道町
- 須賀町
- 住吉町
- 高田馬場
- 箪笥町
- 大京町
- 築地町
- 筑土八幡町
- 津久戸町
- 天神町
- 戸塚町
- 内藤町
- 中井
- 中落合
- 中里町
- 中町
- 納戸町
- 西落合
- 西五軒町
- 西新宿
- 西早稲田
- 二十騎町
- 払方町
- 原町
- 馬場下町
- 東榎町
- 東五軒町
- 百人町
- 袋町
- 舟町
- 弁天町
- 南榎町
- 南町
- 南元町
- 南山伏町
- 山吹町
- 矢来町
- 横寺町
- 余丁町
- 四谷
- 若葉
- 若松町
- 若宮町
- 早稲田 鶴巻町
- 早稲田 南町
- 早稲田町
- 戸山
- 富久町
- 河田町
- 霞ヶ丘町
- 四谷坂町
- 四谷本塩町
- 四谷三栄町
東京メトロ東西線の他のマンションを探す
新宿区の他の種別を探す
- 愛住町
- 赤城 下町
- 赤城 元町
- 揚場町
- 荒木町
- 市谷加賀町
- 市谷甲良町
- 市谷砂土原町
- 市谷左内町
- 市谷鷹匠町
- 市谷田町
- 市谷台町
- 市谷長延寺町
- 市谷仲之町
- 市谷八幡町
- 市谷船河原町
- 市谷本村町
- 市谷薬王寺町
- 市谷柳町
- 市谷山伏町
- 岩戸町
- 榎町
- 大久保
- 改代町
- 神楽河岸
- 神楽坂
- 霞岳町
- 片町
- 歌舞伎町
- 上落合
- 喜久井町
- 北新宿
- 北町
- 北山伏町
- 細工町
- 坂町
- 左門町
- 三栄町
- 信濃町
- 下落合
- 下宮比町
- 白銀町
- 新小川町
- 新宿
- 水道町
- 須賀町
- 住吉町
- 高田馬場
- 箪笥町
- 大京町
- 築地町
- 筑土八幡町
- 津久戸町
- 天神町
- 戸塚町
- 内藤町
- 中井
- 中落合
- 中里町
- 中町
- 納戸町
- 西落合
- 西五軒町
- 西新宿
- 西早稲田
- 二十騎町
- 払方町
- 原町
- 馬場下町
- 東榎町
- 東五軒町
- 百人町
- 袋町
- 舟町
- 弁天町
- 南榎町
- 南町
- 南元町
- 南山伏町
- 山吹町
- 矢来町
- 横寺町
- 余丁町
- 四谷
- 若葉
- 若松町
- 若宮町
- 早稲田 鶴巻町
- 早稲田 南町
- 早稲田町
- 戸山
- 富久町
- 河田町
- 霞ヶ丘町
- 四谷坂町
- 四谷本塩町
- 四谷三栄町
