中古マンション
リフォーム
ネオマイム生麦
■リフォーム物件<2025年10月下旬完了>…リフォーム内容:システムキッチン・ユニットバス・洗面化粧台・トイレ交換、フローリング張替、クロス貼替、フロアタイル貼替、建具・防水パン・スイッチ等交換、エアコン設置(1基)、各居室照明器具・レースカーテン設置など
■3方角部屋・5階部分につき、陽当たり・通風・眺望良好!
■安心のオートロック付き
■11階建て・外壁タイル貼り、徒歩圏内に買い物施設が揃う利便性の良いマンションです♪
■お気軽にお問い合わせください!
| 価格 | 5,080万円 |
|---|---|
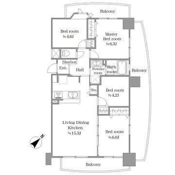
| 間取り・ 専有面積 |
4LDK / 74.82m²(約22.63坪) |
| 築年月 | 築 1994年03月 |
| 交通 | 京急本線「生麦」駅 徒歩5分 JR鶴見線「国道」駅 徒歩11分 |
| 所在地 | 横浜市 鶴見区生麦3丁目 |
この物件情報を共有する
物件概要
▶ マンションライブラリーを見る横浜市 鶴見区生麦3丁目
5,080万円
京急本線「生麦」駅 徒歩5分
JR鶴見線「国道」駅 徒歩11分
82戸
SRC(鉄骨鉄筋コンクリート)
74.82m²(約22.63坪)
41.34m²
4LDK
南東
1994年03月(平成6年03月)築
5階/地上11階・地下1階
空家
不要
15,625円/月
9,000円/月
全部委託
日勤
所有権
商業地域
即時
-
仲介










町会費:300円/月
2025年10月27日
2025年11月10日
周辺環境
学校
- 横浜市立生麦小学校(徒歩2分)
- 横浜市立生麦中学校(徒歩17分)
- 生麦保育園(徒歩3分)
買い物
- セブンイレブン 横浜生麦4丁目店(徒歩1分)
- ファミリーマート 生麦店(徒歩5分)
- まいばすけっと 生麦3丁目店(徒歩3分)
- クリエイトSD(エス・ディー) 鶴見生麦店(徒歩4分)
その他施設
- 横浜生麦郵便局(徒歩1分)
※地図の更新タイミングの関係で、物件情報が実際のものとは異なる場合や最新情報に更新されていない場合がございます。
※表示される物件の位置が実際のものとは数百メートル程度ずれる場合がございます。
店舗情報
店舗HPはこちら

住まいのすべてをここで。
私たちは住まいに関するご相談に「ワンストップ」でお応えいたします。
住宅供給、建物管理、不動産仲介など、多岐にわたる不動産事業の実績と経験。
住まいと共に歩んできたナイスが皆様の暮らしを幅広くサポートいたします。

※取引態様として<仲介>と記載されている物件は、上記価格の他に当社規定の仲介手数料と別途消費税が必要となります。
※販売価格は物件価格の総額を表示しています。物件価格の消費税及び地方消費税の対象となる場合は消費税込みの価格を表示しています。価格の千円単位を切り上げまたは切り下げを行い表示している場合があります。購入に必要な諸費用などは含まれていません。詳しくは担当者までご確認ください。※外観パースイメージ(絵図)は図面をもとに描いたものです。あらかじめご了承ください。
※室内写真に使用されているパース(予想図)は、内装工事図面をもとに描き起こしたイメージイラストです。
※室内にCGイメージを使用している場合、実際の室内写真をベースにCGイメージを合成しています。室内には汚れ・傷などがある場合があります。
※図面と現況が異なる場合、現況及び担当者情報を優先いたします。※陽当たり・眺望・風通・駐車場の空状況等については更新日現在の情報です。将来にわたって保証するものではありません。※特別の説明がない場合、家具・調度品は販売価格に含まれません。
※間取図に家具の配置が掲載されている場合は、その配置は参考例です。家具のサイズによっては配置できない場合があります。
※ホームステージング®実施物件は、家具や小物でインテリアコーディネートを加えています。家具や小物などは物件価格に含まれません。
※ホームステージング®は一般社団法人日本ホームステージング協会の登録商標です。
※略号凡例・・・L=リビング、D=ダイニング、K=キッチン、MB=メーターボックス、PS=パイプスペース、S=サービスルーム(納戸等)、WIC=ウォークインクロゼット、SIC=シューズインクロゼット、TR=トランクルーム
※上記物件は、掲載中に売却済みまたは売却が中止となる場合があります。
ナイス株式会社 住宅事業本部
神奈川県横浜市鶴見区鶴見中央4-33-1 国土交通大臣免許(15)第1125号 (一社)不動産流通経営協会会員 (一社)不動産協会会員 (公社)首都圏不動産公正取引協議会加盟
横浜市 鶴見区の他のマンションを探す
- 朝日町
- 安善町
- 市場 上町
- 市場 下町
- 市場 西中町
- 市場 東中町
- 市場 富士見町
- 市場 大和町
- 潮田町
- 江ケ崎町
- 扇島
- 小野町
- 梶山
- 上末吉
- 上の宮
- 寛政町
- 岸谷
- 北寺尾
- 栄町通
- 汐入町
- 下野谷町
- 尻手
- 下末吉
- 末広町
- 菅沢町
- 諏訪坂
- 大黒町
- 大黒ふ頭
- 大東町
- 佃野町
- 鶴見
- 鶴見中央
- 寺谷
- 豊岡町
- 仲通
- 生麦
- 浜町
- 馬場
- 東寺尾
- 東寺尾 北台
- 東寺尾 中台
- 東寺尾 東台
- 平安町
- 弁天町
- 本町通
- 三ツ池公園
- 向井町
- 元宮
- 矢向
- 駒岡
- 獅子ケ谷
京急本線の他のマンションを探す
- 京急川崎
- 八丁畷
- 鶴見市場
- 京急鶴見
- 花月総持寺
- 生麦
- 京急新子安
- 子安
- 神奈川新町
- 京急東神奈川
- 神奈川
- 横浜
- 戸部
- 日ノ出町
- 黄金町
- 南太田
- 井土ヶ谷
- 弘明寺
- 上大岡
- 屏風浦
- 杉田
- 京急富岡
- 能見台
- 金沢文庫
- 金沢八景
- 追浜
- 京急田浦
- 安針塚
- 逸見
- 汐入
- 横須賀中央
- 県立大学
- 堀ノ内
- 京急大津
- 馬堀海岸
- 浦賀
横浜市 鶴見区の他の種別を探す
