新築一戸建て
現地案内会
新吉田東5丁目新築一戸建て
■東急東横線「綱島」駅徒歩18分
■閑静な住宅街に立地!
■新吉田小学校まで徒歩7分、新田中学校まで徒歩3分!子育て環境良好です
■駐車1台可能(車種による)
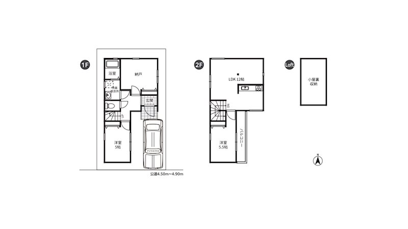
■小屋裏収納付きでゆとりある間取りプラン
■全室2面採光につき通風良好
■家族の顔が見えやすい、リビング階段
■家族との会話も弾む、人気の対面キッチン
■浴室に窓有り、換気のしやすい仕様です
| 価格 | 4,980万円 |
|---|---|
| 間取り・ 建物面積 |
2LDK+S(納戸) / 62.22m²(約18.82坪) |
| 築年月 | 築 2026年07月(新築) |
| 交通 | 東急東横線「綱島」駅 徒歩18分 横浜グリーンライン「高田」駅 徒歩20分 東急新横浜線「新綱島」駅 徒歩21分 |
| 所在地 | 横浜市 港北区新吉田東5丁目 |
| 現地案内会 午前 10:00~午後 6:00 ●予約制ご案内会開催● 現地をご見学いただけます。 陽当たりや眺望、音などの室内環境、住環境など実際に体感ください。 |
この物件情報を共有する
物件概要
横浜市 港北区新吉田東5丁目
4,980万円
東急東横線「綱島」駅 徒歩18分
横浜グリーンライン「高田」駅 徒歩20分
東急新横浜線「新綱島」駅 徒歩21分
木造
2LDK+S(納戸)
62.82m²(約19坪)
62.22m²(約18.82坪)
2026年07月(令和8年07月)築
地上2階
未完成
不要
市街
-
宅地
南側幅4.5m (公道)
所有権
第一種低層住居専用地域
50%
100%
期日指定 2026年07月
仲介
-





建築確認番号:第25UDI1S建05598号
取引有効期限:2026年04月19日
2026年04月05日
2026年04月19日
周辺環境
学校
- 横浜市立新吉田小学校(徒歩7分)
- 横浜市立新田中学校(徒歩3分)
- しんよしだ幼稚園(徒歩6分)
- しんよしだこども園(徒歩8分)
買い物
- セブンイレブン 横浜綱島上町店(徒歩7分)
- いなげや 横浜綱島店(徒歩10分)
- イオン横浜新吉田店(徒歩19分)
- ハックドラッグ 横浜新吉田東店(徒歩4分)
その他施設
- 東前公園(徒歩1分)
※地図の更新タイミングの関係で、物件情報が実際のものとは異なる場合や最新情報に更新されていない場合がございます。
※表示される物件の位置が実際のものとは数百メートル程度ずれる場合がございます。
店舗情報
店舗HPはこちらナイス住まいの情報館 綱島
横浜市港北区綱島西2丁目
3-2 ナイスアーバンステイツ綱島1F
電話:0120-412-181
担当:斉藤
資格:宅地建物取引士/賃貸不動産経営管理士/木造ハウジングコーディネーター


この物件とよく比較される物件
住まいのすべてをここで。
私たちは住まいに関するご相談に「ワンストップ」でお応えいたします。
住宅供給、建物管理、不動産仲介など、多岐にわたる不動産事業の実績と経験。
住まいと共に歩んできたナイスが皆様の暮らしを幅広くサポートいたします。

※取引態様として<仲介>と記載されている物件は、上記価格の他に当社規定の仲介手数料と別途消費税が必要となります。
※販売価格は物件価格の総額を表示しています。物件価格の消費税及び地方消費税の対象となる場合は消費税込みの価格を表示しています。価格の千円単位を切り上げまたは切り下げを行い表示している場合があります。購入に必要な諸費用などは含まれていません。詳しくは担当者までご確認ください。※外観パースイメージ(絵図)は図面をもとに描いたものです。あらかじめご了承ください。
※室内写真に使用されているパース(予想図)は、内装工事図面をもとに描き起こしたイメージイラストです。
※室内にCGイメージを使用している場合、実際の室内写真をベースにCGイメージを合成しています。室内には汚れ・傷などがある場合があります。
※図面と現況が異なる場合、現況及び担当者情報を優先いたします。※陽当たり・眺望・風通・駐車場の空状況等については更新日現在の情報です。将来にわたって保証するものではありません。※特別の説明がない場合、家具・調度品は販売価格に含まれません。
※間取図に家具の配置が掲載されている場合は、その配置は参考例です。家具のサイズによっては配置できない場合があります。
※ホームステージング®実施物件は、家具や小物でインテリアコーディネートを加えています。家具や小物などは物件価格に含まれません。
※ホームステージング®は一般社団法人日本ホームステージング協会の登録商標です。
※略号凡例・・・L=リビング、D=ダイニング、K=キッチン、MB=メーターボックス、PS=パイプスペース、S=サービスルーム(納戸等)、WIC=ウォークインクロゼット、SIC=シューズインクロゼット、TR=トランクルーム
※上記物件は、掲載中に売却済みまたは売却が中止となる場合があります。
ナイス株式会社 住宅事業本部
神奈川県横浜市鶴見区鶴見中央4-33-1 国土交通大臣免許(15)第1125号 (一社)不動産流通経営協会会員 (一社)不動産協会会員 (公社)首都圏不動産公正取引協議会加盟

